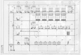
Afin de faciliter les exigences des marchés de nos clients, nous pouvons assurer une farine de blé souple usine de moulin à la conception d'un apport de matières premières, le pré-nettoyage, le blé silo, le nettoyage du blé, mouture, mélange de farine et mélanger. Tous ces changements permettent technologiques ou futurs ajouts selon les marchés.

① Cette plante de blé 200t moulin à farine modifications de la conception de procédé technologique traditionnel. Il dispose d'itinéraire long de la fabrication de la farine, qui adopte le système de pause, le système de zéro, système de réduction, et rend la farine uniformément et complètement. Le nouveau procédé technologique comprend "5B4S6M" systèmes et a 17 cours du processus technologique de broyage, ce qui assure non seulement la qualité de la farine et la couleur blanche de la farine. La teneur en cendres est faible, améliore également la farine d'extraction et réduit la consommation d'énergie.
Système de Scratch ② et système de réduction adopte rouleau lisse, ce qui améliore la couleur de la farine et de précision, et rend le son moins brisés et de réduire la teneur en cendres, d'exclure le son brisé.
③ La section mouture adopte purificateur, son pinceau centrifuges de son,, plansichter farine et d'autres équipements auxiliaires. Il améliore l'efficacité du système de broyage et de système de déplacement, améliore la précision de la farine et sa couleur, la teneur en cendres lreduces, et d'améliorer le taux d'extraction et de la qualité du produit.
④ Le purificateur peut séparer l'endosperme de la farine et d'améliorer la qualité de la farine et sa couleur. Il peut allonger le temps de stockage. L'endosperme de blé séparés est très bonne nourriture naturelle. Avec un traitement ultérieur approprié, il peut accroître les avantages économiques de cette plante moulin à farine de blé.
